LOADING

24 Chapel Street Annapolis Royal, Nova Scotia B0S 1A0

3 Bedroom 2 Bathroom 1700 sqft
2 Level Heat Pump Landscaped

$549,900

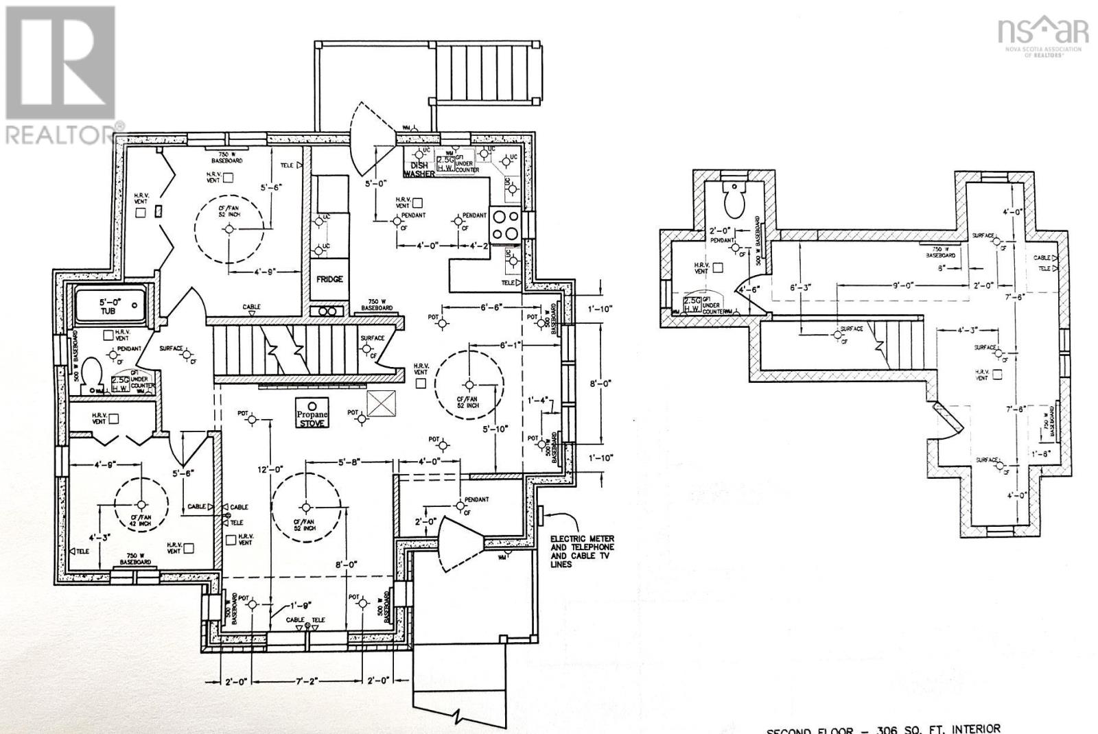
This beautifully crafted custom home, has been thoughtfully designed to complement the historic charm of Annapolis Royal. Constructed in 2011 with ICF construction, (Insulated Concrete Forms), this energy-efficient home boasts high-quality materials and a comfortable, traditional layout. The custom kitchen and spacious dining area are separated by a generous peninsula, perfect for both family gatherings and intimate dinners. A wide doorway connects the living and dining areas, providing an open flow while clearly defining each space. This level also includes two bedrooms and a full bathroom. Upstairs is a versatile loft-like space that can serve as a bedroom suite, home office, or hobby area. This level also features a two-piece bath and a large attic with development potential. The expansive, mostly finished basement offers new flooring and paint, making it an ideal space for a home gym, theatre, or rec room. Additionally, there's a practical area with a workbench and a spacious laundry room equipped with a utility sink and a walk-out to the backyard. For enhanced water quality, the house includes a whole-home water filtration system plus a reverse osmosis unit under the kitchen sink. Heating and cooling are efficiently managed by a ceiling-mounted ductless heat pump, supplemented by baseboard heaters and a new propane stove in the living room. The back door opens to a charming enclosed porch overlooking the fenced backyard, an ideal feature for dog owners and families with young children. The property is beautifully landscaped with mature flower gardens, trees, and flowering shrubs, creating a private oasis. Located on a quiet side street, just steps from the picturesque Annapolis River, this home offers easy access to public trails for walking or biking. All the amenities and attractions of this popular small town are also within strolling distance. This immaculate home is one of the rare newer builds available in the area and is ready for a quick closing. (id:29604)

Property Details

MLS® Number 202515032
Property Type Single Family
Community Name Annapolis Royal
Amenities Near By Golf Course, Playground, Public Transit, Shopping, Place Of Worship
Community Features Recreational Facilities, School Bus
Equipment Type Propane Tank
Rental Equipment Type Propane Tank

Building

Bathroom Total 2
Bedrooms Above Ground 3
Bedrooms Total 3
Appliances Stove, Dishwasher, Dryer, Washer, Freezer - Stand Up, Microwave, Refrigerator, Gas Stove(s)
Architectural Style 2 Level
Basement Development Partially Finished
Basement Type Full (partially Finished)
Constructed Date 2011
Construction Style Attachment Detached
Cooling Type Heat Pump
Exterior Finish Wood Siding
Flooring Type Ceramic Tile, Hardwood
Half Bath Total 1
Stories Total 2
Size Interior 1700 Sqft
Total Finished Area 1700 Sqft
Type House
Utility Water Municipal Water

Parking

Gravel

Land

Acreage No
Land Amenities Golf Course, Playground, Public Transit, Shopping, Place Of Worship
Landscape Features Landscaped
Sewer Municipal Sewage System
Size Irregular 0.37
Size Total 0.37 Ac
Size Total Text 0.37 Ac

Rooms

Level Type Dimensions
Second Level Bedroom 15.5x8.8+4x4
Second Level Bath (# Pieces 1-6) 6.4x4.11+4x4.-2pc
Second Level Other 5. x 10.11-Upstair Hall
Basement Recreational, Games Room 16.11 x 11.1
Basement Recreational, Games Room 10.4 x 11.7+jog
Basement Workshop 8. x 16.2
Basement Laundry / Bath 11.2 x 11.3
Basement Storage 9.2 x 13.11
Basement Storage 3.2 x 7.10
Main Level Foyer 8.2 x 4.1
Main Level Dining Nook 10.5 x 11.6
Main Level Kitchen 11.1 x 13.8
Main Level Living Room 11.1 x 16.2
Main Level Bath (# Pieces 1-6) 5.8 x 7.4-4pc
Main Level Bedroom 9.7 x 8.5
Main Level Bedroom 11.2 x 9.12
Main Level Other 6.10 x 2.11-Main Hall

https://www.realtor.ca/real-estate/28488818/24-chapel-street-annapolis-royal-annapolis-royal

Interested?

Contact us for more information


Generating Captcha

Paula Leslie

(902) 526-2462
(902) 532-2010
https://paulaleslie.evrealestate.com/

Engel & Volkers (Annapolis Royal)
241 St. George Street
Annapolis Royal, Nova Scotia B0S 1A0

(902) 532-2121

Your Favourites

 

No Favourites Found