LOADING

272 Explorer Loop East Uniacke, Nova Scotia B0N 1Z0

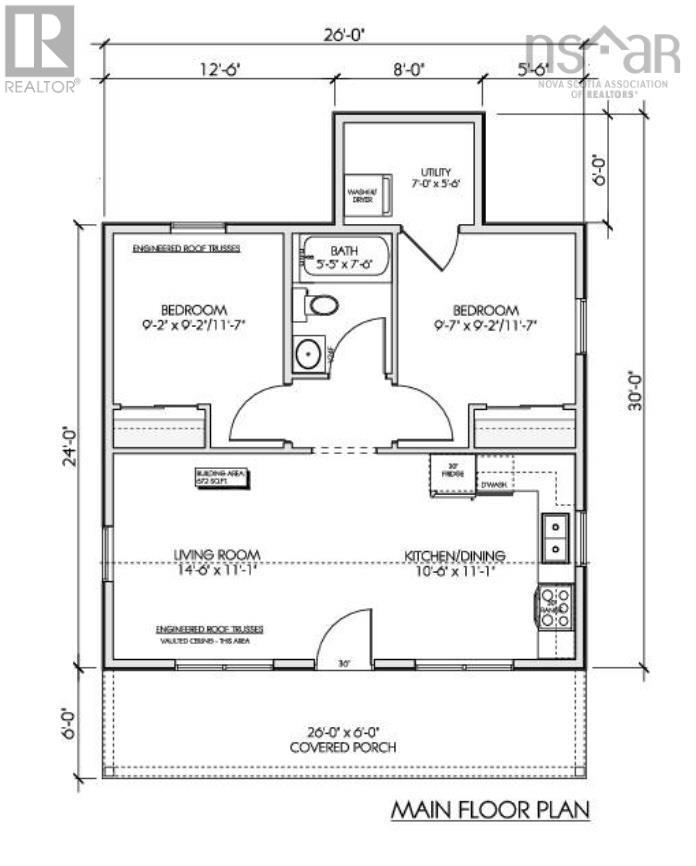
2 Bedroom 1 Bathroom 672 sqft
Bungalow Wall Unit, Heat Pump Acreage

$359,900

Maintenance,

$25 Monthly

Have you dreamed of affordable living in your own house? We have the answer! Loon Point, in the Villages of Long Lake, an Lake Side Community in East Uniacke! Its just a short commute to the cities and airport. This Bare Land Condo has it all. You own your lot and everything on it, while the Condo Corp manages and maintains the roads, parks, trails and lake access points. They are even responsible to inspect your septic tank and clean it out if required. Yes every property owner has deeded access to the 3 private lake access points with their wharves, canoe, kayak, one even has a paddle board racks and boat launch. Undeveloped Lots start at approximately $67,500 and Homes start in the $300,000 price range. We offer many home designs suited to this development. We can also help design and build your custom home. This Cricket is a cozy Rancher. It is a 648 sq ft 2 bedroom home on a 1.4 acre lot. The House includes 2 comfortably sized bedrooms, a 4 piece bath, a utility/laundry room and a comfortable great room. Comfortable Cozy and very affordable. Call to book your appointment now (id:29604)

Property Details

MLS® Number 202602753
Property Type Single Family
Community Name East Uniacke
Features Treed, Level, Walk-in Closet

Building

Bathroom Total 1
Bedrooms Above Ground 2
Bedrooms Total 2
Architectural Style Bungalow
Basement Type None
Construction Style Attachment Detached
Cooling Type Wall Unit, Heat Pump
Exterior Finish Vinyl
Flooring Type Vinyl Plank
Foundation Type Concrete Slab
Stories Total 1
Size Interior 672 Sqft
Total Finished Area 672 Sqft
Type House
Utility Water Drilled Well

Parking

Gravel

Land

Acreage Yes
Sewer Septic System
Size Irregular 1.4087
Size Total 1.4087 Ac
Size Total Text 1.4087 Ac

Rooms

Level Type Dimensions
Main Level Foyer included
Main Level Great Room 25 x 11.1
Main Level Living Room included
Main Level Dining Room included
Main Level Kitchen included
Main Level Bedroom 9.2 x 9.7 + jog
Main Level Bedroom 9.2 x 9.2 + Jog
Main Level Bath (# Pieces 1-6) 5.5 x 7.6
Main Level Laundry Room 7 x 5.6
Main Level Utility Room included

https://www.realtor.ca/real-estate/29363305/272-explorer-loop-east-uniacke-east-uniacke

Interested?

Contact us for more information


Generating Captcha

Andy During

(902) 497-3540
(902) 435-0642
(902) 497-3540
www.andyduring.ca/

RE/MAX Nova
32 Akerley Blvd Unit 101
Dartmouth, Nova Scotia B3B 1N1

(902) 468-3400
(902) 468-3702
www.remaxnova.com/

Your Favourites

 

No Favourites Found