LOADING

323 Frederick Street New Glasgow, Nova Scotia B2H 3N9

$1,233,333

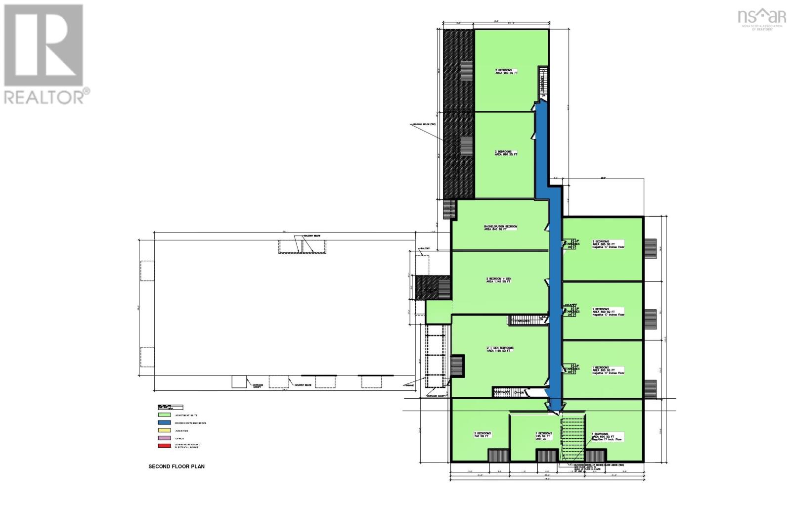
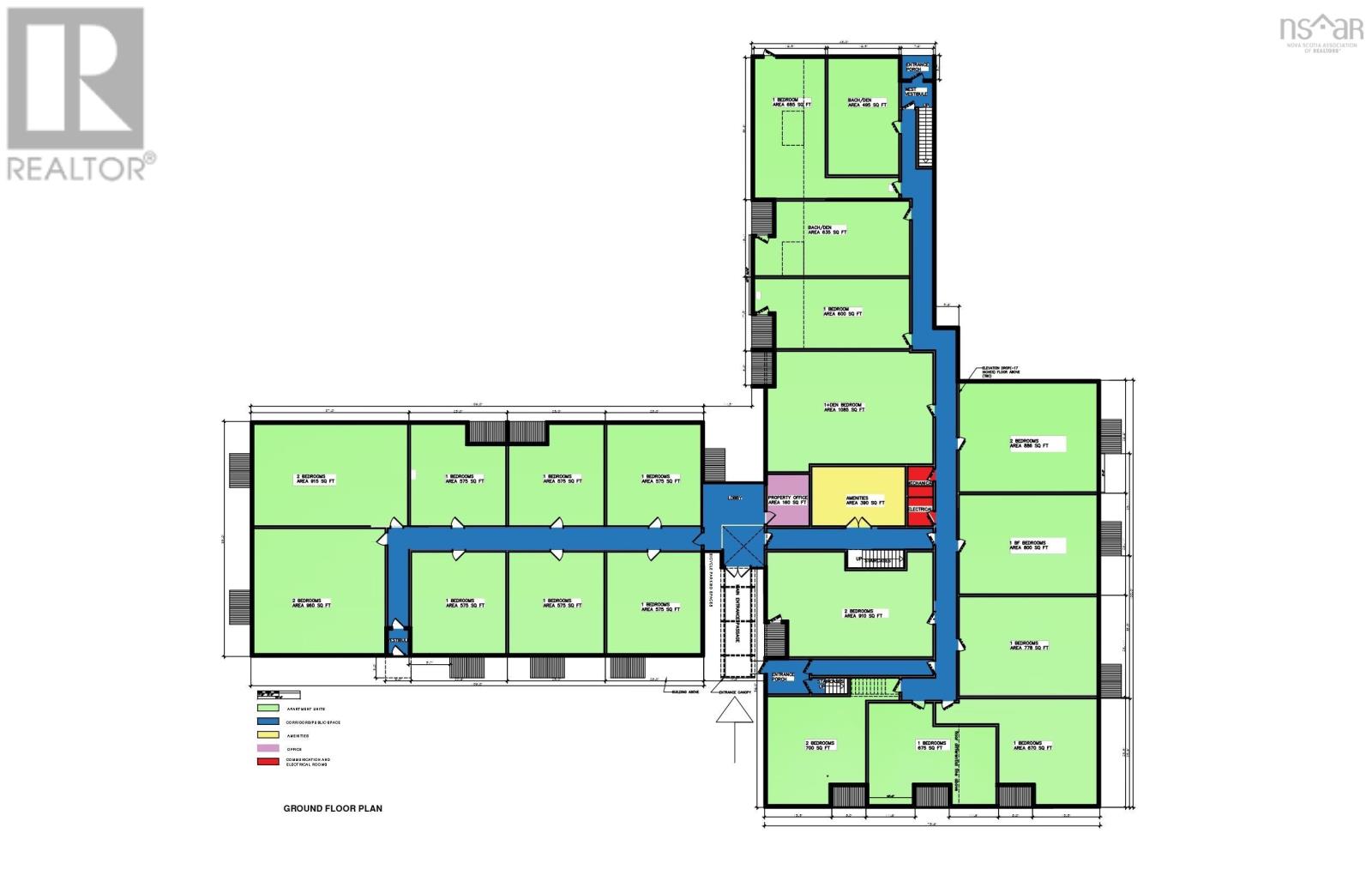
An application for Development Agreement(DA) for a 3140 unit project has already received verbal approval in the town of New Glasgowan area currently in need of both affordable and market-rate housing. This property could be the perfect opportunity youve been waiting for!Whether you're looking for move-in-ready office space, potential residential units, or secure dry storage, this versatile property has endless possibilities. The existing building, while requiring some updates, offers ample parking, off-road access, loading dock doors, and dual street frontage on both Frederick and Washington Streetsensuring maximum convenience. Currently, the interior includes a few offices and a meeting room, while the warehouse section is easily accessible and well-suited for storage or rental use. To simplify the purchasing process, the property comes with an Application Package that will be formally approved before the buyer's final transaction.Dont miss this exceptional investment opportunityperfect for a multi-unit development with strong potential for government-backed financing assistance! (id:29604)

Business

Business Type Industrial
Business Sub Type Warehouse

Property Details

MLS® Number 202520299
Property Type Industrial
Community Name New Glasgow

Building

Flooring Type Concrete, Wood
Total Finished Area 16037 Sqft
Utility Water Municipal Water

Parking

Gravel
Parking Space(s)
Paved Yard

Land

Acreage No
Size Irregular 0.7323
Size Total 0.7323 Ac
Size Total Text 0.7323 Ac

https://www.realtor.ca/real-estate/28720650/323-frederick-street-new-glasgow-new-glasgow

Interested?

Contact us for more information


Generating Captcha

Arun Nag Anupindi

(902) 989-0000
https://www.proagentrealtor.ca/
https://www.facebook.com/mrrealtor29/

House Maestro Realty Inc.
336 Fleetview Drive
Halifax, Nova Scotia B3M 0L8

(902) 456-7592

Your Favourites

 

No Favourites Found