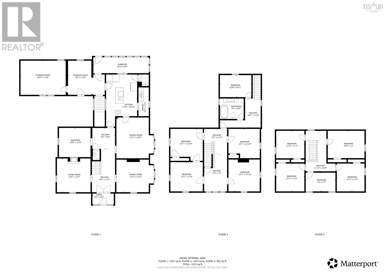
WELCOME to The Valley Inn, a 200-Year Old Stagecoach Landmark. Sitting on just over 3 acres on the peaceful river, this three-storey residence showcases timeless character on an impressive scale, and endless potential. The main floor of his home offers an absolute beautiful entrance, with double front parlours, large diving room, a living room or office currently used as a bedroom, half bath, large renovated kitchen, with kitchen pantry and access to the back staircase, wrapping around to the families entrance, workshop area, and an absolute gorgeous sunroom overlooking your 3 acres. The 11-foot ceilings throughout the home do stop you in time, paired with the grand staircase takes you to the second floor of the home. This floor provides buyers with five bedrooms and a full bath, the third level provides five bedrooms, and one space could easily be converted to a full bath if one wished. This home is perfectly set up for multigenerational living, main residence with studio on the third floor, Inn/ bed & breakfast or retreat/event destination. Outside the fenced backyard perfect for family gatherings, also offers a greenhouse, raised garden beds, chicken coop, bee yard & small animal enclosure to house any hobby farming animal you may wish. Truly endless possibilities. This is more than a home, it is a legacy property, offering the chance to preserve history while creating something truly special. (id:29604)
| MLS® Number | 202606339 |
| Property Type | Single Family |
| Community Name | Southampton |
| Amenities Near By | Golf Course, Shopping, Place Of Worship, Beach |
| Community Features | School Bus |
| Bathroom Total | 2 |
| Bedrooms Above Ground | 9 |
| Bedrooms Total | 9 |
| Basement Type | Full |
| Constructed Date | 1826 |
| Construction Style Attachment | Detached |
| Exterior Finish | Vinyl |
| Flooring Type | Hardwood, Wood |
| Foundation Type | Concrete Block, Poured Concrete |
| Half Bath Total | 1 |
| Stories Total | 3 |
| Size Interior | 4152 Sqft |
| Total Finished Area | 4152 Sqft |
| Type | House |
| Utility Water | Well |
| Gravel |
| Acreage | Yes |
| Land Amenities | Golf Course, Shopping, Place Of Worship, Beach |
| Sewer | Septic System |
| Size Irregular | 3.9537 |
| Size Total | 3.9537 Ac |
| Size Total Text | 3.9537 Ac |
| Level | Type | Length | Width | Dimensions |
|---|---|---|---|---|
| Second Level | Bedroom | 13.1x11.9 | ||
| Second Level | Bedroom | 12.7x12.10 | ||
| Second Level | Bedroom | 12.7x11.10 | ||
| Second Level | Bedroom | 12.8x8.11 | ||
| Third Level | Bedroom | 11.4x11.1 | ||
| Third Level | Bedroom | 11.4x11.3 | ||
| Third Level | Bedroom | 14.9x11 | ||
| Third Level | Bedroom | 11.2x11.2 | ||
| Third Level | Bedroom | 12x7.7 | ||
| Main Level | Foyer | 8.5x4.4 | ||
| Main Level | Living Room | 13.6x13.7 | ||
| Main Level | Family Room | 15.1x13.2 | ||
| Main Level | Dining Room | 15.1x16.5 | ||
| Main Level | Bedroom | 12.8x11.9 | ||
| Main Level | Kitchen | 12.6x20.12 | ||
| Main Level | Other | /Pantry 4.2x11.7 | ||
| Main Level | Sunroom | 22.3x6.5 | ||
| Main Level | Porch | 9.5x13.9 | ||
| Main Level | Storage | 18.2x13.9 | ||
| Main Level | Bedroom | 13.1x12.10 | ||
| Main Level | Bath (# Pieces 1-6) | 9.7x8.3 |
https://www.realtor.ca/real-estate/29559613/4747-canaan-road-southampton-southampton
Contact us for more information
Lacey Fisher
(902) 660-3325
(902) 660-3310
www.remaxamherst.ca/