LOADING

632 Oakland Road Indian Point, Nova Scotia B0J 2E0

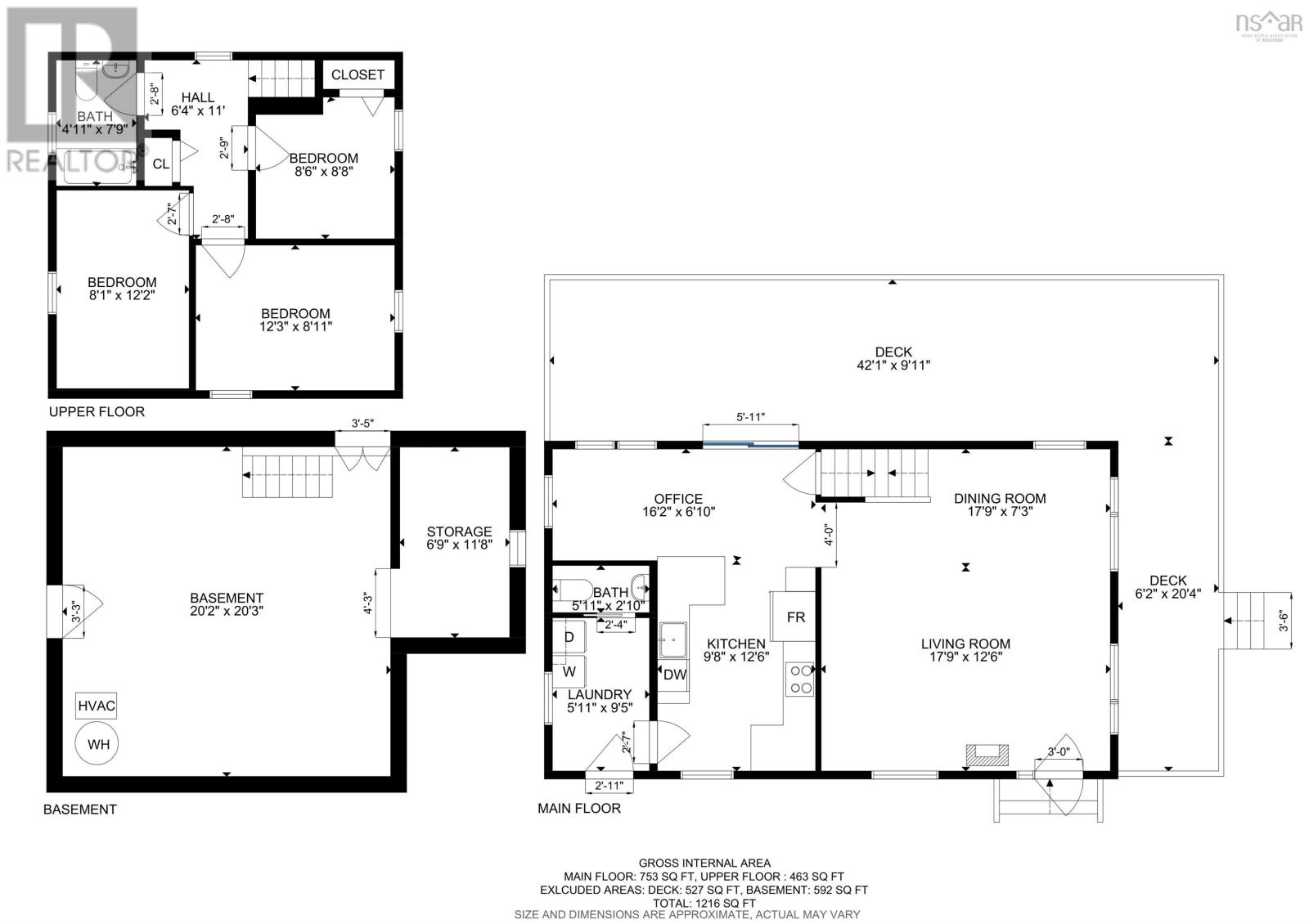
3 Bedroom 2 Bathroom 1215 sqft
Fireplace Landscaped

$479,000

This mid-20th century home has a quiet, idyllic enclave by the ocean. Nestled in what was once an active fishing village, Indian Point is an unassuming sought-after location on Nova Scotia's beautiful South Shore. The house overlooks a small bridge and a sheltered cove and beyond to the islands of greater Mahone Bay. The property directly fronts on a tidal pond, with its abundant wildlife, and is surrounded by long established, good neighbours - just over five minutes drive to Mahone Bay by the sea. The house has a clean, simple, traditional design. The former front porch has been incorporated into the main living-dining space and provides lovely views over the water. The kitchen "L" has been recently renovated with manufactured-stone countertops, a convection cooktop and stainless appliances. The appealing casual dining area has sliding glass doors off the breakfast nook with access to an exterior deck allowing for views of the pond. The rear mudroom-laundry has a powder room at one end and is located immediately off the driveway with ample parking for three cars. This home also features a new, high efficiency, propane furnace and a new septic system. A recently constructed 20 ft. by 20 ft. workshop would also serve well as an at-home office or studio, or seasonal bunky for grandchildren. The second floor features three bedrooms and the family bath. This home also features a recently installed, high efficiency, propane furnace. Indian Point is an active, walkable community ideal for seniors or young families. There is a possibility of a mooring in the bay and the village is just minutes drive to the 103 Highway, with Bridgewater a 15 minute drive, and Halifax or the airport just over one hour's drive. Whether full-time home, seasonal retreat, or as a tourist destination, this home offers lifestyle and convenience at an affordable price, on the waters of Mahone Bay ! (id:29604)

Property Details

MLS® Number 202509750
Property Type Single Family
Community Name Indian Point
Equipment Type Propane Tank
Rental Equipment Type Propane Tank
Structure Shed
View Type Ocean View

Building

Bathroom Total 2
Bedrooms Above Ground 3
Bedrooms Total 3
Appliances Central Vacuum, Oven - Electric, Dishwasher, Dryer - Electric, Washer, Microwave Range Hood Combo, Refrigerator
Basement Development Unfinished
Basement Type Full (unfinished)
Constructed Date 1954
Construction Style Attachment Detached
Exterior Finish Wood Shingles
Fireplace Present Yes
Flooring Type Carpeted, Wood, Tile
Foundation Type Poured Concrete
Half Bath Total 1
Stories Total 2
Size Interior 1215 Sqft
Total Finished Area 1215 Sqft
Type House
Utility Water Dug Well

Parking

Parking Space(s)

Land

Acreage No
Landscape Features Landscaped
Sewer Septic System
Size Irregular 0.202
Size Total 0.202 Ac
Size Total Text 0.202 Ac

Rooms

Level Type Dimensions
Second Level Foyer 6.4x11. irregular
Second Level Bath (# Pieces 1-6) 4.11x7.9
Second Level Bedroom 8.6x8.8
Second Level Bedroom 8.11x12.3
Second Level Bedroom 8.1x12.2
Main Level Living Room 12.6x17.9
Main Level Dining Room 7.3x17.9
Main Level Kitchen 9.8x12.6
Main Level Dining Nook 6.2x16.2
Main Level Mud Room 5.11x9.5 laundry
Main Level Bath (# Pieces 1-6) 2.10x5.11

https://www.realtor.ca/real-estate/28257207/632-oakland-road-indian-point-indian-point

Interested?

Contact us for more information


Generating Captcha

Jeffrey Everett

(902) 523-0671

Engel & Volkers (Lunenburg)
96 Montague Street
Lunenburg, Nova Scotia B0J 2C0

(902) 634-1250

Michael Wilson

(902) 527-3822
(866) 791-4483

Engel & Volkers (Lunenburg)
96 Montague Street
Lunenburg, Nova Scotia B0J 2C0

(902) 634-1250

Your Favourites

 

No Favourites Found