LOADING

9878 Main Street Canning, Nova Scotia B0P 1H0

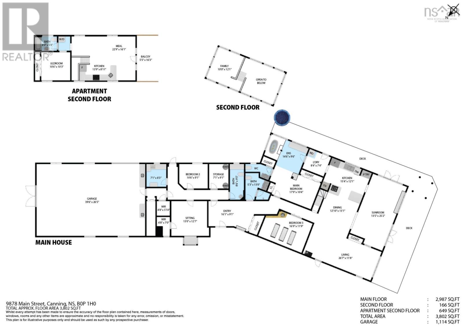
5 Bedroom 4 Bathroom 3802 sqft
Waterfront On River Acreage

$1,250,000

Live, work, host, and createall within one beautifully designed structure offering a main residence, private apartment, professional office suite, and expansive workshop. A rare and remarkable offering just steps from the charming heart of Canning where you can walk to all amenities; 15 minutes from Wolfville and Acadia University and excellent access to the highway. This distinctive waterfront property is a harmonious blend of architectural elegance and thoughtful design. Set along the banks of the Habitant River, the residence is nestled among beautifully landscaped grounds filled with mature flowering trees and shrubs, and spacious gardens, offering a tranquil retreat. The main home, an artful two-bedroom, two-bathroom masterpiece, is flooded with natural light and features a striking west-facing solarium, open concept living space with a sizable loft with every part bathed in natural light. A south-facing kitchen overlooks the lush gardens, while elegant architectural details and solid ICF construction ensure both beauty and energy efficiency. This exceptional property offers a rare versatility with four distinct spaces. Attached to the main house is a dedicated two-office suite with accessible washroom, kitchenette and private entrance providing an ideal space for a home-based business or studio. An impressive two-storey high garage/shop adds further opportunity and flexibility. A self-contained bright, one-bedroom apartment on the second floor features warm cork flooring and captivating views. Every element of this home has been designed for elegance, function, and connection to its natural surroundingsa private sanctuary with unlimited potential in one of Nova Scotias most vibrant and sought-after communities. (id:29604)

Property Details

MLS® Number 202516976
Property Type Single Family
Community Name Canning
Amenities Near By Park, Shopping, Beach
Water Front Type Waterfront On River

Building

Bathroom Total 4
Bedrooms Above Ground 5
Bedrooms Total 5
Basement Type None
Constructed Date 2008
Construction Style Attachment Detached
Exterior Finish Stucco
Flooring Type Ceramic Tile, Cork
Foundation Type Concrete Slab
Half Bath Total 1
Stories Total 2
Size Interior 3802 Sqft
Total Finished Area 3802 Sqft
Type House
Utility Water Municipal Water

Parking

Garage
Attached Garage
Gravel
Parking Space(s)

Land

Acreage Yes
Land Amenities Park, Shopping, Beach
Sewer Municipal Sewage System
Size Irregular 2.08
Size Total 2.08 Ac
Size Total Text 2.08 Ac

Rooms

Level Type Dimensions
Second Level Other Flex room 10.0 x 12.1
Second Level Family Room 22.9x16.1
Second Level Kitchen Apt 13.9 x 8.11
Second Level Bath (# Pieces 1-6) 8x5.8
Second Level Bedroom 10.6x10.3
Main Level Foyer 16.1x12.7
Main Level Living Room 26.7x11.8
Main Level Dining Room 12.10 x 13.1
Main Level Kitchen 15.4 x 12.1
Main Level Sunroom 13.5x25.2
Main Level Primary Bedroom 17.9x10.4+14.6x9.6
Main Level Ensuite (# Pieces 2-6) 14.6x9.6
Main Level Bedroom 13x12.7
Main Level Bedroom 10.6x9.1
Main Level Bath (# Pieces 1-6) 5.3 x 13.0
Main Level Bath (# Pieces 1-6) 8.6 x 9.5
Main Level Other 7.1 x 8.3
Main Level Laundry Room 7.4x8.4

https://www.realtor.ca/real-estate/28575755/9878-main-street-canning-canning

Interested?

Contact us for more information


Generating Captcha

Christa Southcott

(902) 488-0240
(902) 455-6738
https://www.facebook.com/SOldbyChrista/
https://www.linkedin.com/in/christafredette/
https://twitter.com/ChristaFredette

Engel & Volkers
1901 Gottingen Street
Halifax, Nova Scotia B3J 0C6

(902) 422-5552
(902) 422-5562
https://novascotia.evrealestate.com/

Jennifer O'neil

(902) 802-6708

Engel & Volkers
1901 Gottingen Street
Halifax, Nova Scotia B3J 0C6

(902) 422-5552
(902) 422-5562
https://novascotia.evrealestate.com/

Your Favourites

 

No Favourites Found